湘南平塚のリフォーム・リノベーションならアルベリアールホーム(alberi+R HOME)中藤材木店

和室を大変身!片付くウォークインクローゼットと猫ちゃんが喜ぶキャットウォークのある暮らし

平塚市・マンション

今回のリフォームで特にこだわったのが、にゃんこが快適に過ごせる空間づくりです。棚受けを使わず、壁に挟み込む形でキャットウォークを新設し、しっかりとした強度を確保しました。デザインだけではなく「安心して乗れる」ことを大切に考え、構造面にも配慮しています。

Concept

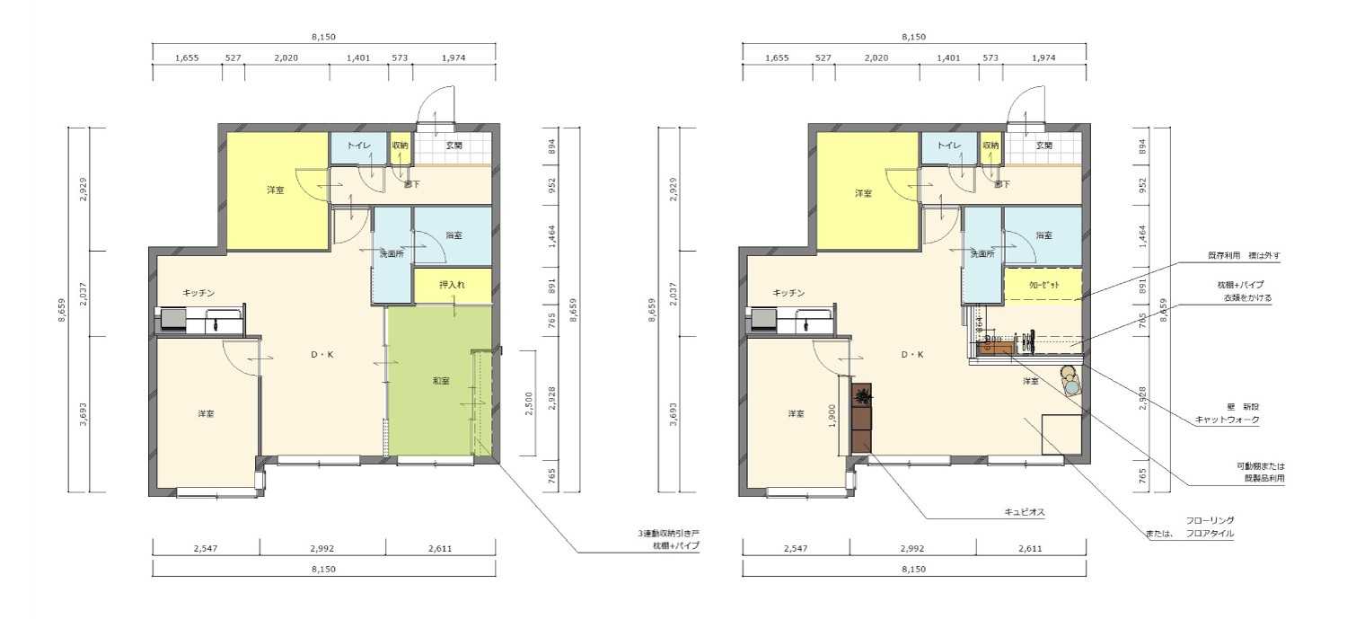
マンションのリフォームでは、リビング横の和室が「いつの間にか荷物置き場になってしまう」というお悩みをよく耳にします。
今回のお住まいも同じく、活用しきれず物が集まりやすいスペースとなっていました。
そこで、和室を思い切って改装し、日常的に使いやすく、片付けやすい空間へと生まれ変わらせました。

まず畳はフローリングに変更し、リビングとの一体感が生まれました。床材が変わるだけで、
お部屋全体の印象が明るくなり、用途の幅もぐっと広がります。
また、既存の押入れは扉を外し、内部を活かしながら新たに壁を設け、ウォークインクローゼットとして使えるようにリフォームしました。
扉がない収納は出し入れがしやすく、自然と片付けの習慣がつきます。

 

畳と襖を取り去りました

下がり壁控え壁をとり、木目天井はクロス下地の為に合板を上張り

床を施工後、新たな壁を付けます

入り口が狭くならないように、手前は奥行き30㎝の本棚を

奥は 枕棚+パイプハンガーで普段使いの衣類をかけます

正面にグレーの壁紙

棚 兼収納のキュビオスには猫ちゃんのグッツを収納

キャットタワーに高さをあわせて設置

さらに奥様の寝室には、猫ちゃんが自由に出入りできる専用の出入り口も設けました。
「扉を閉めたいけれど、猫が入りたがって扉を開けっぱなしになってしまう」というお悩みは、猫と暮らすご家庭ではよくあります。
専用の出入り口をつくることで、奥様も猫ちゃんもストレスなく過ごすことができますね。
大きさはA4を少し小さくしたくらい。とても開閉が柔らかいく、しなやかなので、猫ちゃんも怖がらずにつかえるようです。
こちらのお宅でも、無事、猫ちゃんが出入り口を使ってくれているとのことです
 くぐり戸が苦手ないぬ・ねこもいるので、慣れてもらうために、のれん部分が 取り外しができます。最初はのれん部分を外しておき、通り抜けに慣れてから 扉を付けると失敗しにくくなります。
お色は半透明もお選びいただけます
工事内容
CGでイメージを共有しました
 

DATA

所在地  神奈川県平塚市
建物種類  マンション
家族構成  
工期   8日間
平米数
工事費用  130万~
工事内容
 
 和室改装 
 床材 Panasonic ダブルコート
 ウォッシュドオーク柄
 壁紙 サンゲツ SP2564
    リリカラ LB9511
 収納 Panasonic キュビオス
    チェリー&ホワイトアッシュ
 
工事後、さっそくキャットウォークにちょこんと乗ってくれた猫ちゃんの写真をお客様が送ってくださいました。 大切な家族である猫ちゃんが喜んで使ってくれると私たちもやった!という感じです☺
担当 中村より

<お客様の声>
 

                                                        
 

他の施工事例も見てみる

  • 吊り戸をなくして、光とつながるキッチンへ。築20年の住まいをリフレッシュ× 平塚市

    「まだ住めるけれど、どこか古さが気になる」 そんな時こそ、...

  • パールグレーでつくる大人の上質空間。心地よさを追求した浴室・洗面・トイレリフォーム× 二宮町

    トイレ・浴室ともに同じパールグレーで統一し、全体のつながりを...

  • 床置きゼロへ!脱衣室整理リフォーム

    今回の工事では、浴室のドア枠をずらしてできたスペースを活用し...

  • 光を引き込む ・ペールグリーンのキッチンで彩る新しい暮らし× 平塚市

    これからの暮らしを見据え、単なる設備の入れ替えではなく、今お...

ページトップ