湘南平塚のリフォーム・リノベーションならアルベリアールホーム(alberi+R HOME)中藤材木店

ブルーが効いた心地よい空間づくり|壁移動で叶えた収納リフォーム

平塚市・マンション

大好きなブルーをテーマにした今回のリフォームでは、色を楽しみながらも落ち着いて暮らせる空間づくりを意識しました。ブルーはドアや浴室の床、アクセントクロスに取り入れていますが、分量を控えめにすることで、主張しすぎない上品なインテリアに仕上げています。

Concept

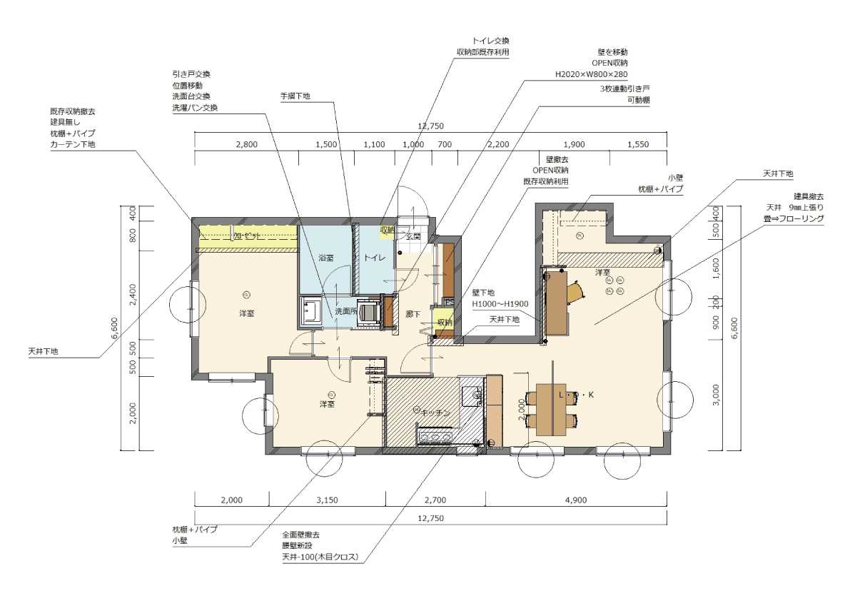
壁を移動してスペースを確保

今回の大きな工夫ポイントは、キッチン・洗面・廊下のリフォームにあたり、壁を移動してスペースを確保したことです。これまで有効活用できていなかった部分を見直し、壁の位置を調整することで、新たに収納スペースを生み出しました。奥行きの浅いオープン収納を採用したことで、よく使うものを近くに収められ、家事や身支度の動線がスムーズになります。壁の移動は大がかりに思われがちですが、少しの調整で暮らしやすさが大きく向上するケースも多く、動線を改善するリフォームとしても効果的です。


 

和室とリビングを仕切る壁を取り去る

Before

廊下収納の一部をキッチン側から使えるように

このキッチン脇の収納は

かつては壁だった所

廊下収納の一部を拝借 ③の部分

Before 少し暗く、熱がこもりやすいキッチン

すっきりと視界が開け、

エアコンの風も届くように

①洗濯機を移動し

この壁を取る

②廊下側から使える収納に 

和室との壁を取って、リビングを広く

壁側にワークスペースと

押入れだった場所にオープン収納を設けました

 

洗面台

脱衣所

洗濯機置き場

また、建具の色をこげ茶から白へ変更したことで、廊下全体が明るくなり、開放感のある印象になりました。廊下を明るくするリフォームは、住まい全体の印象を左右する重要なポイントです。さらに、湿気がこもりやすくカビが気になっていた収納には扉を設けず、カーテンで緩やかに仕切る方法をご提案しました。風通しが良くなり、収納のカビ対策にもつながります。取り出しやすく、仕舞いやすい収納計画により、見た目と使い勝手を両立した住まいが完成しました。

玄関収納

大きく開き、仕舞いやすい

トイレはこだわりのクロスに

天井は元の下がりを生かして、アクセントに

夜になると照明がきれい

ネイビーのリビングの扉は中心で、家の雰囲気を引き締めます

クロス選び

品番

工事内容

 
 

DATA

所在地  神奈川県平塚市
建物種類  マンション
家族構成  
工期  2.5カ月
平米数
工事費用  
工事内容
 
 全面改装
 リビングドア Panasonic ベリティス
 キッチン TOTO ザクラッソ
 収納建具 パナソニック
 トイレ TOTO ピュアレスト
 洗面 TOTO オクターブ
 浴室 TOTO サザナ
 床 ノダ ナラ材 防音フロア

<お客様の声>
 

他の施工事例も見てみる

  • パールグレーでつくる大人の上質空間。心地よさを追求した浴室・洗面・トイレリフォーム× 二宮町

    トイレ・浴室ともに同じパールグレーで統一し、全体のつながりを...

  • 床置きゼロへ!脱衣室整理リフォーム

    今回の工事では、浴室のドア枠をずらしてできたスペースを活用し...

  • 光を引き込む ・ペールグリーンのキッチンで彩る新しい暮らし× 平塚市

    これからの暮らしを見据え、単なる設備の入れ替えではなく、今お...

  • 親のリフォーム・家事を楽にするキッチン・× 平塚市

    長年お母さまが使っていたキッチンのリフォームをお手伝いさせて...

ページトップ