湘南平塚のリフォーム・リノベーションならアルベリアールホーム(alberi+R HOME)中藤材木店

壁付けから対面へ。視界が広がるダイニングキッチンリフォーム

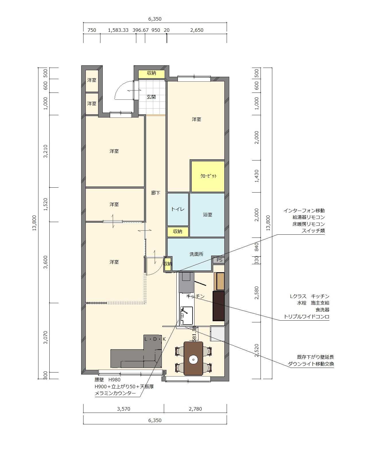
平塚市・マンション

Concept


壁付けキッチンから対面キッチンへ

視界の広がりと家族のつながりを大切にした空間づくりを行いました。リビングに入った瞬間に感じる開放感と、自然と会話が生まれるレイアウトが、毎日の暮らしにゆとりをもたらします。調理のしやすさを追求したトリプルワイドガスコンロにより、料理のストレスを軽減し、作業の流れもスムーズに。さらに腰壁のモール装飾や色味の調和にこだわり、機能性とデザイン性を兼ね備えた、まるで雑誌の一頁のような上質なキッチン空間を実現しました。

 

リビング入り口から


加熱機器にはトリプルワイドのガスコンロを採用しています。一般的な3口コンロは、同時に調理をすると鍋同士が重なり、実際には2口しか使えないというお悩みも少なくありません。その点、トリプルワイドは3口が横並びのため、すべてを無理なく使うことができます。さらに手前側に作業スペースがあることで、出来上がった料理をその場で盛り付けたり、少しだけ野菜を切ったりと、調理と作業を一体で行えるのも大きな特長です。調理動線がスムーズになり、料理のしやすさを実感できるキッチンとなりました。

 

トリプルワイドガス

操作部は押すと現れます。とってもスマート

炊飯スイッチ

インテリア

新たに設けたキッチンの腰壁には、モールを貼り、框組のように見えるデザインを施しました。立体感のある仕上がりにすることで、空間に上質な表情が生まれています。モール部分はクロスの色に合わせてペンキを調色し、全体が自然に調和するよう丁寧に仕上げました。機能面だけでなく、細部のデザインにまでこだわることで、キッチンは単なる作業スペースではなく、住まいの主役となる存在へ。まるでインテリア雑誌に登場するような、洗練されたダイニングキッチンが完成しました。

クロスを貼ったあとに、モールを取付

500色のパレットから調色してもらったペイント

モールの割り付け

Before

キッチン解体後

壁にあった配管を、床の下で延長します

南部鉄。丁寧な暮らしが見えます

お手持ちの照明も素敵

リビングからの眺め

 
 

DATA

所在地  神奈川県平塚市
建物種類  マンション
家族構成  ご夫婦+お子様1人
工期  5日
平米数
工事費用  200万~
工事内容
 
 キッチン PanasonicSクラス
 
 床 東リ
 壁 サンゲツ

<お客様の声>
 

                                                        

炊飯鍋を使う際、以前は奥のコンロだったため、炊き上がったあとに手前へ移動させるのが少し大変でしたが、今はその手間がなくなり、とても楽になりました。
また、キッチンの高さを5cm上げていただいたことで、腰への負担もかなり軽減されています。

対面キッチンになったことで、料理をしながら家族と会話がしやすくなったのも嬉しいポイントです。
壁のデザインは本当にかわいくてお気に入りですし、キッチン扉のグレイッシュグリーンと真鍮色の取手の組み合わせもとても気に入っています。
毎日キッチンに立つたびに、自然と気分が明るくなります

                                                        
 

担当 中村より

他の施工事例も見てみる

  • 吊り戸をなくして、光とつながるキッチンへ。築20年の住まいをリフレッシュ× 平塚市

    「まだ住めるけれど、どこか古さが気になる」 そんな時こそ、...

  • パールグレーでつくる大人の上質空間。心地よさを追求した浴室・洗面・トイレリフォーム× 二宮町

    トイレ・浴室ともに同じパールグレーで統一し、全体のつながりを...

  • 床置きゼロへ!脱衣室整理リフォーム

    今回の工事では、浴室のドア枠をずらしてできたスペースを活用し...

  • 光を引き込む ・ペールグリーンのキッチンで彩る新しい暮らし× 平塚市

    これからの暮らしを見据え、単なる設備の入れ替えではなく、今お...

ページトップ